Moradia Lagoa Algarve
1 / 3
Vendida
Moradia A+

Moradia Lagoa Algarve

Lagoa,Lagoa, Faro

Preço (€)

577 000 €

Descrição

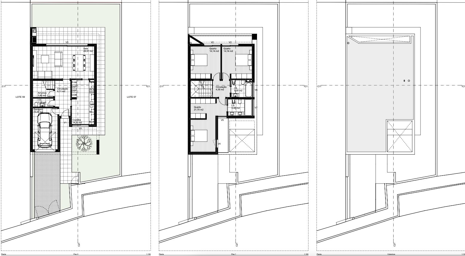
Moradia T3 de LUXO, com Suite, jardim, Garagem para 2 carros ! Moradia T3 de LUXO , com 3 fantásticos quartos ( 1 Suíte com Closet ) | Jardim e Espaço exterior generoso, Garagem fechada para 2 carros | MORADIA EXCLUSIVA COM ARQUITETURA MODERNA . Descubra o verdadeiro significado de viver com elegância nesta fantástica moradia de design contemporâneo, onde cada detalhe foi pensado para proporcionar conforto, sofisticação e funcionalidade. Arquitetura com linhas modernas, luz natural abundante e espaços amplos. Materiais nobres e acabamentos premium em todos os ambientes. Cozinha de conceito aberto totalmente equipada, perfeita para quem aprecia a arte de receber. Sala de estar e jantar luminosa com ligação direta ao jardim. Três fantásticos quartos, um deles suíte com closet com um design moderno. Espaço exterior generoso, ideal para momentos de lazer, com possibilidade de piscina e zona gourmet. Eficiência energética e tecnologia de automação residencial, pré-instalação de ar condicionado em todas divisões e sistema de ventilação mecânica VMC. Garagem fechada para dois carros. Esta fantástica moradia, localizada numa zona de tranquilidade e prestigiada, próxima de todos os serviços essenciais, oferece o equilíbrio ideal entre privacidade, acessibilidade e estilo de vida.

Detalhes da Propriedade

Quartos

3

Casas de Banho

2

Ano de Construção

2021

Andar

1

Características e Comodidades

Tem Garagem
Tem Jardim
Tem Piscina

Informação de Contacto

Pessoa de Contacto 1

Celia Marisa

Pessoa de Contacto 2

Celia Tavares

Tel: Portugal +351913160232

ImmoLux

Sobre a ImmoLux

A ImmoLux é especializada em imobiliário de luxo em Portugal, oferecendo uma seleção curada de moradias, apartamentos e propriedades exclusivas premium.

Os Nossos Parceiros

Paca Group

Contacto

© 2026 André Pereira. Todos os direitos reservados

Idioma:

Loading...